Ort: Berlin-Mitte
Bestandsgebäude von ca. 2011
Ausführungszeitraum: 2020-2021
Bauzeit: ca. 3 Monate
Auftraggeber: Privat
Objektplanung: STUDIO LOES 
Auftragsvolumen: ca. 120.000,- Euro
Nutzung: Wohnung
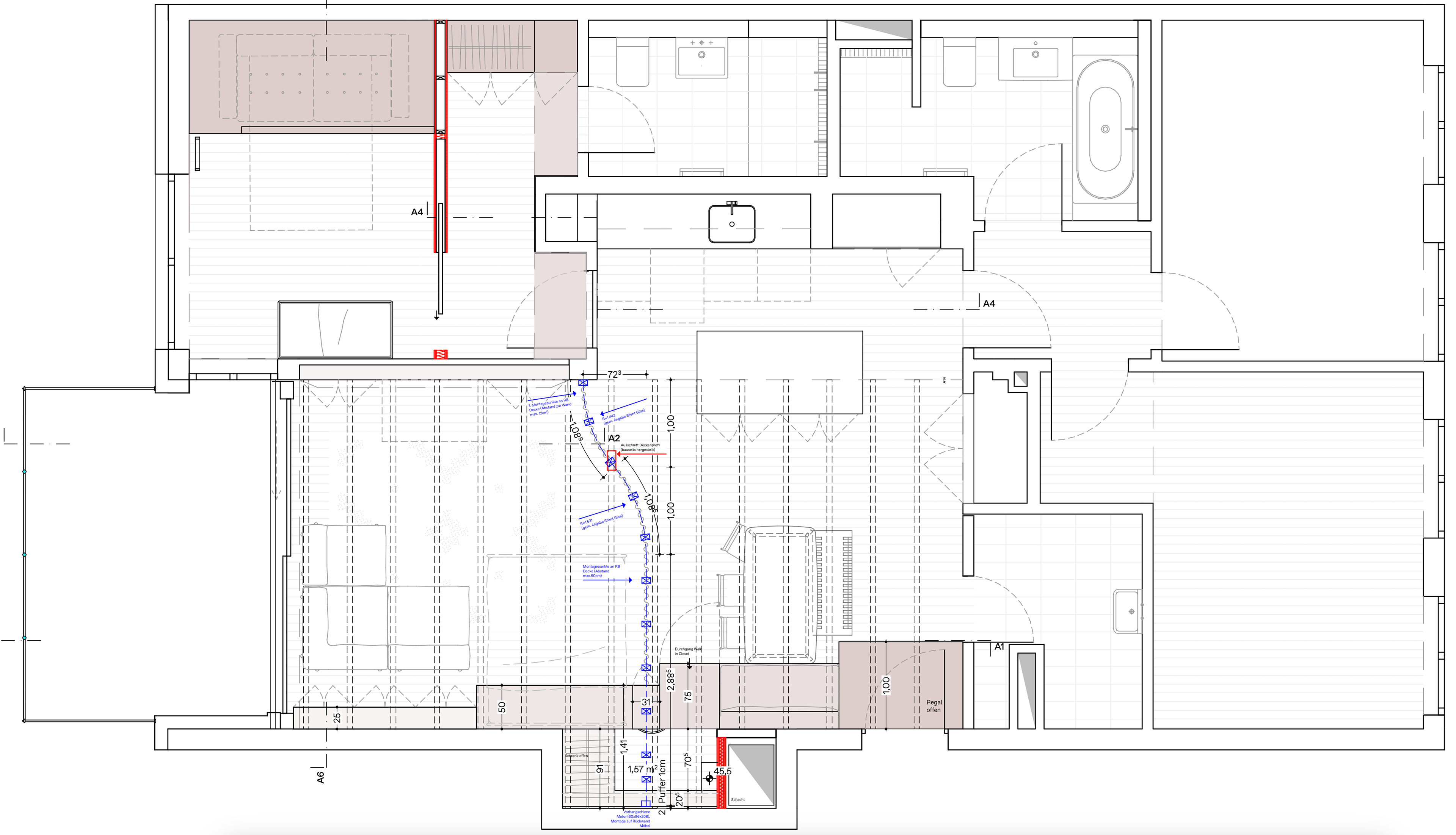
Leistungsbild: Trockenbau, Elektro, Sanitär, Naturstein , Individueller Möbelbau, Malerarbeiten, Smarthome Intergration, Ausstattung
Fotos Baustelle: LOES DELTA BAU. Fotos Projekt: Erman Aksoy. Plan: STUDIO LOES

You may also like

Back to Top